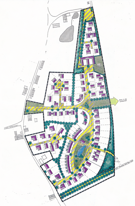
Für das Brodhäger Zentrum wurde 1991 ein Bebauungsplan entwickelt. Dieser wurde allerdings nie realisiert. Die Prioritäten der baulichen Entwicklung in der Gemeinde lagen zunächst in Reddelich. Später wurde eine bauliche Erweiterung Brodhagens, über einen Lückenschluss hinaus, mehrheitlich nicht mehr gewünscht.

Artikel aktualisiert am 7. Mai 2025